Если цена в объявлении изменится, мы сразу сообщим вам об этом на электронную почту.
Нажимая «Подписаться», вы соглашаетесь с правилами.
продам 1-к, Рижское шоссе, 193 800 000 ₽
1 окт
Дата публикации объявления
Обн. вчера
Дата обновления объявления
2
Количество просмотров (+ просмотры за сегодня)
122 977 ₽/м²
Чистая продажа
Термин "Чистая продажа" означает, что в квартире никто не прописан или
есть куда выписаться и вывезти вещи. Это лучший вариант для покупателя.
Вероятность срыва сделки минимальна.
(Исх. 514199) Уютная 1-комнатная квартира в Волоколамске ждет своих новых хозяев!
Расположена по адресу: г. Волоколамск, Рижское шоссе, д. 19. Квартира находится на первым этаже/ пяти этажного кирпичного дома 1977 года постройки.
О квартире:
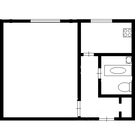
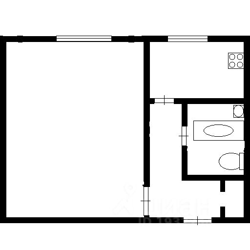
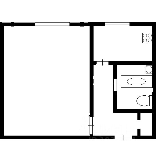
Общая площадь: 30,9 кв. м. Просторная комната: 16 кв. м. Функциональная кухня: 6,4 кв. м. Совмещенный санузел. Квартира очень светлая и чистая, готова к вашим дизайнерским решениям (требуется косметический ремонт). Дом теплый, квартира сухая. Установлены современные пластиковые окна.
Преимущества расположения:
Всё необходимое рядом: магазин, школа 2, поликлиника. Для отдыха и прогулок прекрасный парк.
(Исх. 514199) Уютная 1-комнатная квартира в Волоколамске ждет своих новых хозяев!
Расположена по адресу: г. Волоколамск, Рижское шоссе, д. 19. Квартира находится на первым этаже/ пяти этажного кирпичного дома 1977 года постройки.
О квартире:
Общая площадь: 30,9 кв. м. Просторная комната: 16 кв. м. Функциональная кухня: 6,4 кв. м. Совмещенный санузел. Квартира очень светлая и чистая, готова к вашим дизайнерским решениям (требуется косметический ремонт). Дом теплый, квартира сухая. Установлены современные пластиковые окна.
Преимущества расположения:
Всё необходимое рядом: магазин, школа 2, поликлиника. Для отдыха и прогулок прекрасный парк. Удобная транспортная доступность: автобусная остановка всего в 5 минутах ходьбы. Быстро доберетесь до центра г. Волоколамск (5 минут) и ж/д станции (10 минут).
Важные детали:
Документы полностью готовы к сделке. Без перепланировок. Два взрослых собственника, в собственности более 5 лет.