Если цена в объявлении изменится, мы сразу сообщим вам об этом на электронную почту.
Нажимая «Подписаться», вы соглашаетесь с правилами.
продам дом, Советская, 464 750 000 ₽
6 ноя
Дата публикации объявления
Обн. 14 мая
Дата обновления объявления
40
Количество просмотров (+ просмотры за сегодня)
80 508 ₽/м²
Чистая продажа
Термин "Чистая продажа" означает, что в квартире никто не прописан или
есть куда выписаться и вывезти вещи. Это лучший вариант для покупателя.
Вероятность срыва сделки минимальна.
Этажей1
Площадь участка9,13 соток
Общая площадь59 м2
Материал домадерево
ЭлектричествоЕсть
Газоснабжениецентральное
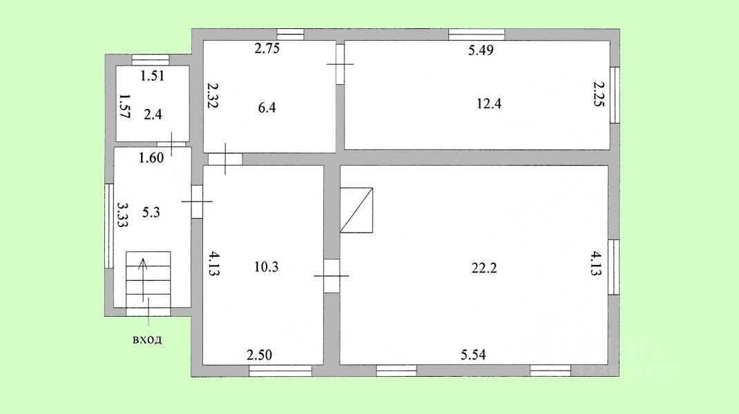
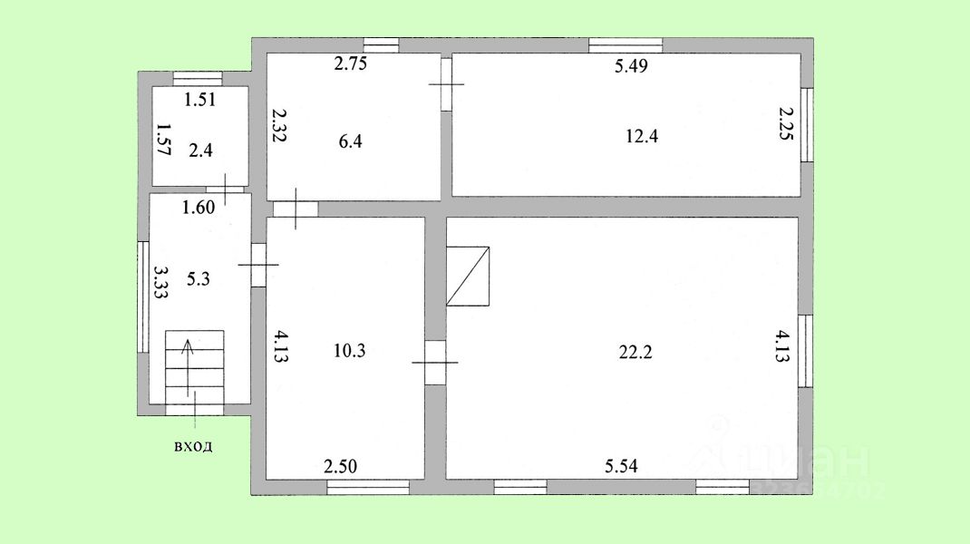
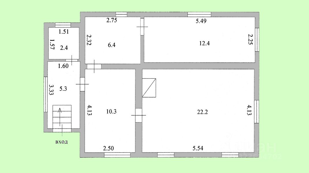
Предлагаем купить дом в центральной части города Волоколамска на улице Советской. Менее 100 км. по Новорижскому направлению Московской области. Шаговая доступность до исторического центра города Волоколамска, в непосредственной близости от волоколамской городской плотины, центрального городского парка, действующего православного храма. Площадь дома 59 кв.м. Три комнаты, кухня и летняя терраса. Площадь комнат: 6,4 кв.м. / 12,4 кв.м. / 22,2 кв.м. Кухня 10,3 кв.м. Дом одноэтажный бревенчатый. Снаружи облицован сайдингом. Кровля ондулином. Внутренняя отделка вагонкой. Окна обычные деревянные с двойным остеклением. Отопление печное. Электричество подключено. Магистральный газопровод по границе. Собственный колодец глубиной 10 м. без подведения к дому. Канализации нет.
Предлагаем купить дом в центральной части города Волоколамска на улице Советской. Менее 100 км. по Новорижскому направлению Московской области. Шаговая доступность до исторического центра города Волоколамска, в непосредственной близости от волоколамской городской плотины, центрального городского парка, действующего православного храма. Площадь дома 59 кв.м. Три комнаты, кухня и летняя терраса. Площадь комнат: 6,4 кв.м. / 12,4 кв.м. / 22,2 кв.м. Кухня 10,3 кв.м. Дом одноэтажный бревенчатый. Снаружи облицован сайдингом. Кровля ондулином. Внутренняя отделка вагонкой. Окна обычные деревянные с двойным остеклением. Отопление печное. Электричество подключено. Магистральный газопровод по границе. Собственный колодец глубиной 10 м. без подведения к дому. Канализации нет. В начале 2000-х выполнена реконструкция дома (узаконена). Дом использовался для периодического отдыха и непостоянного проживания, но вполне подойдёт и для постоянного, при определенных доделках и подведении коммуникаций. Площадь участка 9,13 сот. Межевание проведено. Участок оформлен, адрес присвоен, координаты границ определены. Удобный заезд для автомобиля с улицы на тыльной стороне участка с парковкой на территории участка. Есть теплица и металлический гараж-пенал для складирования инвентаря. Участок огорожен, периодически окашивается. На территории несколько плодовых деревьев, кустарники, газон. Объект в собственности одного взрослого дееспособного лица на основании договора купли-продажи от 2001 г. Прописанных нет и за время владения никогда не было. От проживания свободен. Возможно быстрое заселение при необходимости. Свободная продажа по цене 4.750.000 руб. Объект предварительно проверен, к сделке готов. Юридическое сопровождение сделки и помощь в обеспечении безопасных расчётов в подарок покупателю от нашего агентства. Показ строго по предварительной договоренности по телефону, звоните!